BAU-Forum: Fertighaus
Neueste Forums-Bilder
Forums-Beiträge
⇐ Neuere Forums- und Blog-Beiträge anzeigen
10684: Ich intessiere mich für ein Frick... 25.02.2011
- Häuser dieser Baujahre... 26.02.2011
10683: Terrassenaufschüttung kurz unter Hausunterkante sprich Sockelhoch 14.02.2011
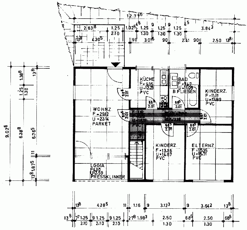
10682: Fertighaus Stralsund E94-1 29.01.2011
10681: Preis Bungalow Fertighaus 23.01.2011
- Gegenfrage... 23.01.2011
- Wo gibt"s das für den Preis? 23.01.2011
- Antwort 23.01.2011
- Torsten... 23.01.2011
- Die meisten älteren Leute... 24.01.2011
- Antwort 24.01.2011
10680: Neckermann Fertighaus Baujahr 1964 Erfahrungen 11.01.2011
- Hallo Christoph, . die Neckermann Eigenheim... 11.01.2011
- Danke für die Tipps 11.01.2011
10679: Außenkanten vom Fertighausrohbau feucht 14.12.2010
10678: Fertighaus aufstellen bei Regen? 08.12.2010
- Was soll man dazu sagen?... 08.12.2010
- Sofort Baustopp! 11.12.2010
- nochmal ich 13.12.2010
- Das hat 13.12.2010
- Lassen... 13.12.2010
- Warum jetzt diese Kehrtwendung? 13.12.2010
10677: Untergurt bei Fertighaus aufgequollen? 25.11.2010
- siehe Foto? 25.11.2010
- Untergurt bei Fertighaus aufgequollen? 26.11.2010
- war da statt der Platten mal... 26.11.2010
- Aluminium Sockel 26.11.2010
- hmm 27.11.2010
- wackeln? 27.11.2010
- geht so nicht 29.11.2010
- Tipp? 29.11.2010
- ö.b.u.v. Sachverständigen 30.11.2010
- wer es glaubt... 06.12.2010
10676: Fertighaus Holzständerbauweise Sanierung Außenwände 13.11.2010
10675: Kaufberatung Schwörer Haus Baujahr. 2000 07.11.2010
- örtlichen Bausachverständigen beauftragen 08.11.2010
- Hallo Herr Tilgner, das wird noch... 08.11.2010
10674: Hanse-Fertighaus Typ Wandtke, Statik und Baubeschreibung 04.11.2010
- Hersteller 04.11.2010
10673: Falsche Fenster geliefert. 02.11.2010
- Eher geringe Chancen... 02.11.2010
- mindestens der Aufpreis sollte ersetzt werden,... 03.11.2010
- Optischer Mangel? Die Lieferung eines roten... 04.11.2010
- der Rat zum Besuch eines Baurechtsanwaltes ist in Ordnung. Die Erwartungen sollten allerdings nicht zu hoch sein... 04.11.2010
- "die Fenster sind hingegen eingebaut. " 04.11.2010
- Verkehrte Welt... 05.11.2010
- es wird wohl auf ein Gerichtsverfahren hinauslaufen... 05.11.2010
- Die liebe Gewohnheit 05.11.2010
- @Torsten 06.11.2010
- Hallo zusammen, wie ist es denn... 28.06.2012
- kommt.. wie immer... darauf an 30.06.2012
10670: Frage zum Kauf eines Okal Fertighaus Baujahr 1999 19.09.2010
10669: alpine Fertigbau B30 Hamburg 12.09.2010
- Hauskauf 16.09.2010
10668: Import Hauskonstruktion bei Fertighausbauern 30.08.2010
- Ausdruck 30.08.2010
- Was jetzt: Einige Ideen visualisieren, oder planen? 31.08.2010
10664: Diverse Fragen... 19.07.2010
- Rückfrage? 19.07.2010
- Rückfragen - Antworten 20.07.2010
- Antworten, Teil 2 20.07.2010
- ok: Prinzip hoffen und würfeln 20.07.2010
- Wow 20.07.2010
- Gemeint ist wohl... 22.07.2010
10663: Unterschiede im Innenwandaufbau: Scanhaus und Okal 16.07.2010
- genau deshalb... 17.07.2010
- Da gibt es noch mehr Unterschiede! 17.07.2010
- Da gibt es riesengroße Unterschiede!... 17.07.2010
- Der eine rechnet so, der andere so. 17.07.2010
- In der Tat gibt es große Unterschiede... 29.07.2010
10662: Entscheidung Fertighaus 10.07.2010
- Indem Sie mal sondieren was SIE den wollen. 12.07.2010
- Verkäufer 12.07.2010
- Vielen Dank schon mal! Unterbewusst war es... 12.07.2010
10661: Kosten für Vorbereitung Bodenplatte 09.07.2010
- Was steht denn im Baugrundgutachten... 09.07.2010
- Was sagt denn... 09.07.2010
10660: Abriss Streif-Fertighaus aus dem Jahre 1972? Pro & Contra bzw. Alternativen 21.06.2010
- Rechnebn Sie es einfach 21.06.2010
- Danke für den Beitrag. Meine Frage... 21.06.2010
10659: Ausisolierung der Zwischenräume zwischen den Aufliegebalken auf der Betondecke durch Bauherrn? 08.06.2010
10658: Wer hat Erfahrungen mit Schwörer, Weber, Allkaufhaus oder Fingerhaus 23.05.2010
- Gegenfrage: 23.05.2010
- um was geht es Ihnen denn? 25.05.2010
- Meine Absicht für diesen Post 25.05.2010
- Dann sollten Sie mal anders anfangen 01.06.2010
10657: Fenster bei einem Streif Fertighaus von 1977 erneuern 18.05.2010
10656: Fertighaus wurde aufgestellt bei strömenden Regen 11.05.2010
- Regen... 12.05.2010
- Hallo, Danke für die schnelle Antwort. Was wäre denn... 12.05.2010
- Sobald das Haus... 12.05.2010
- Nein, wurde nicht gemacht wedder Bautrockner noch sonst... 12.05.2010
- Das ist jetzt natürlich... 13.05.2010
- und! 13.05.2010
- Hat das mit "Oberflächenwasser " nichts mehr zu... 13.05.2010
- Sie brauchen... 16.05.2010
- Fazit: Leute lasst das bauen mit "MEISTERHAFT BAUEN" ausgezeichneten Betrieben bleiben 16.05.2010
10655: Holzhaus Wanddicke 11.05.2010
- korrekt? 11.05.2010
10654: Unterkellertes Fertig-OKAL-Haus Ende 60 er; Abriss/Neubau, was beachten? 01.05.2010
- um das zu beurteilen... 02.05.2010
- Hallo Gernot, . ich habe des Öfteren mit... 03.05.2010
- Vielen Dank für die Antworten 03.05.2010
- Die Okalhäuser kann man durchaus sanieren 12.05.2010
10653: Kauf von Fischer Fertighaus BJ 1984? 23.04.2010
- nicht mehr gar so problematisch 24.04.2010
10652: Kauf Okal Fertighaus von 1977 21.04.2010
- Asbest wurde damals verwendet 21.04.2010
- Fertiges Fertighaus? 21.04.2010
- Fertighäuser 22.04.2010
10651: Fertighaus Dusche ist nicht mehr nutzbar, da Tür verzogen, kein Gewährleistungsanspruch? 16.04.2010
- und selbst wenn... 16.04.2010
- und selbst wenn... in der Zwischenzeit 17.04.2010
- öhm... 17.04.2010
10650: Schallschutz bei Holztafelwänden 09.04.2010
- Definiere... 09.04.2010
10647: Wandaufbau Fertighaus 28.03.2010
- ned schlecht .. 28.03.2010
- Sowas hatten wir hier doch... 28.03.2010
- Och Markus... 28.03.2010
- Wände 28.03.2010
10645: Inhalt einer Pflegeanleitung/Wartungsplan 07.02.2010
- Hört sich doch gut an... 07.02.2010
10644: Fertighaus Modernisieren mit renopan 29.01.2010
10643: Risse im Haus 04.01.2010
- Mängel und andere Dinge 11.01.2010
- Sie sollten sich beeilen, wenn Sie vorhaben... 09.04.2010
- Nachtigall .. 09.04.2010
- Ganz verstehe ich Ihren Text nicht. Wenn Sie... 09.04.2010
10642: Streif-Fertighaus Fassadendämmung verbessern 17.12.2009
- Streif Fertighaus Fassade verbessern 21.12.2009
10641: Aufschlüsselung Einzelposten bei Nachtrag zum Vertrag 15.12.2009
10640: Rolu Fertighaus 1966 - Wärmedämmung - Schadstoffe? 13.12.2009
- da sollte man nicht zu viel erwarten... 01.01.2010
- Man kann schon etwas finden: 02.01.2010
10639: Wandbelag bei Fertighaus 09.12.2009
10637: Muss der Hersteller uns darauf hinweissen das wir einen Raumluftunabhängigen Kaminofen betreiben können, NRW 04.11.2009
- jurustisch kann ich die Sache nicht bewerten, aber... 04.11.2009
- Irgendein Urteil... 04.11.2009
- urustisch kann ich die Sache nicht bewerten, aber mein gesunder Menschenverstand sagt mir, dass ja genau dazu der LAS Schornstein da ist. Was hätten Sie denn erwartet? 05.11.2009
- KfW 40 05.11.2009
- Stand der Technik! 05.11.2009
10636: Rollladenkasten von außen öffnen, FF-Fertighaus Fritz 02.11.2009
10635: Fertighaus aus Würfeln, bzw. Würfelsystem? 20.10.2009
- ist eine "Vision"... 21.10.2009
- Wow 21.10.2009
- das ist ein großes Puzzle... 21.10.2009
- Hallo 21.10.2009
- sieht aus wie Container... 21.10.2009
- Container 21.10.2009
- Tatsächlich 21.10.2009
- Da kam ich wohl zu spät Andrea :) 21.10.2009
- Wiederholungen sind das Motiv... 21.10.2009
- Zu teuer! 21.10.2009
- Nachsatz 21.10.2009
- Bielefeld 21.10.2009
- Hallo Torsten Stodenberg, ;-)) 21.10.2009
- Danke! 21.10.2009
- Bitte,... 21.10.2009
- Nein, Arno... 21.10.2009
- ja Rüdiger ;-))... 21.10.2009
- Architektur retten? 21.10.2009
- Privatschnack 21.10.2009
- Torsten, es war die Mutter ;-))... 21.10.2009
- Danke, Arno! 21.10.2009
- reales Modul?... 22.10.2009
- Halbreale Module 22.10.2009
10633: Kosten Innenausbau bei Danwood Haus? 13.10.2009
- normale vs hochwertige Ausstattung 14.10.2009
10632: Hallo, bei unserem nicht einmal 1 Jahr alten... 24.09.2009
- Auf keinen Fall selber ran gehen. 25.09.2009
- Bernhard... 25.09.2009
- Risse im Verputz 25.09.2009
- Öm... 25.09.2009
- Innen vermutlich geringere Probleme 26.09.2009
- @MoRüBe: Ach Gott, was bin ich wieder naiv 29.09.2009
- Danke für das Stichwort! 29.09.2009
- Hallo Herr Stodenberg, wenn das ein Werbebeitrag für... 03.10.2009
- ein paar Jahre warten? 03.10.2009
- "wenn die Firmenzentrale nicht so weit weg wäre" 03.10.2009
10631: Haftung der Subunternehmer? 23.09.2009
- Haben Sie einen Vertrag mit dem Suppi gehabt 24.09.2009
- Hallo Herr Tilgner, ich muss mal die Verträge... 24.09.2009
- Da bin ich genau andersrum informiert. 24.09.2009
- logisches Recht 25.09.2009
10630: Wände schlitzen für Elektroinstallation... 14.09.2009
- Dampfsperre? 15.09.2009
- Hallo, anke für den Tipp. Es ist sowohl... 15.09.2009
- ich würde einen etwas breiteren Streifen GK (10-15 cm)... 15.09.2009
- Stegleitung? 15.09.2009
10629: Tipps für den Einstieg in Fertigbauhäuser 07.09.2009
- Suhen Sie mal... 07.09.2009
- "und dann erst gehen Sie da nochmal hin, wenn Sie immer noch wollen" 07.09.2009
- Oh weia, da haben sie ja was vor. 07.09.2009
- Massivhaus zu solchen Preisen möglich? 07.09.2009
- Warum kein "Massivhaus"? Soll ich es sagen? 07.09.2009
- Wie das Thema anpacken? 08.09.2009
- Ihr lasst euch nicht einwickeln und... 08.09.2009
- Fertighaus steht fest 08.09.2009
- Gibt es aber nicht kostenlos 08.09.2009
- @Fragesteller 08.09.2009
- Worüber Sie zuerst nachdenken sollten, ist, wie Sie... 08.09.2009
- Habe ich gerade gehört... 08.09.2009
- Hier steht es, Herr Traut 08.09.2009
- aber trotzdem nicht klüngeln 08.09.2009
- Welche Kosten hattet Ihr nicht einkalkuliert? 08.09.2009
- haben Sie noch nicht ganz verstanden 08.09.2009
- Bitte 30 mal einwickeln! 08.09.2009
- Danke Herr Lott, ich hatte das Datum 31.12... 08.09.2009
- Ok, wenn Fertighaus fest steht, dann machen sie das. 08.09.2009
- 0,8 %? 08.09.2009
- Überraschungskosten 09.09.2009
- Wo die ca. 0,8 % herkommen, können Sie... 09.09.2009
- Danke für die Infos 09.09.2009
- Und es gilt: 09.09.2009
- auch wenn schon fast alles gesagt ist... 09.09.2009
10628: Welcher Fertighausbauer hat "All Inclusive" als Festpreis? 03.09.2009
- Alles kein Problem - oder doch? 03.09.2009
- Wird so nicht ganz Funktionieren 04.09.2009
- Finanzierungsreserve ist ein guter Rat, aber: 04.09.2009
- Und auch deshalb gilt wohl immer noch die Regel 04.09.2009
- ist schon fast alles gesagt... 04.09.2009
10626: Fertighaus der Fa. Anton Ritter Fertigbau 24.08.2009
- Anton Ritter Fertigbau GmbH 04.10.2009
10624: Wie entfernt man eine Innenwand in einem Fertighaus? 09.08.2009
- Nichttragend heißt nicht... 09.08.2009
10623: Ist das ändern einer Fenstergröße möglich? 07.08.2009
- geht... 08.08.2009
- Bernhard... 08.08.2009
- Bodentiefe Fenster bringen kaum Helligkeit... 08.08.2009
- Vielen Dank! 09.08.2009
- Altbau kaufen geht schon... 09.08.2009
- Fenster nach unten verlängern ist kein Problem... 11.08.2009
- Also Fertighäuser erst ab 1995? 14.08.2009
- 1995 oder drum herum... 14.08.2009
- Ab '95, ist ja interessant. 17.08.2009
- nicht bedenklich, Herr Kuner... 17.08.2009



























