BAU-Forum: Grundriss-Diskussionen
Neueste Forums-Bilder
Forums-Beiträge
⇐ Neuere Forums- und Blog-Beiträge anzeigen
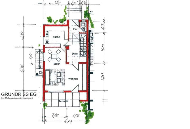
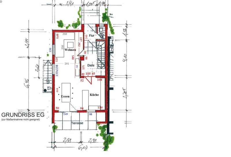
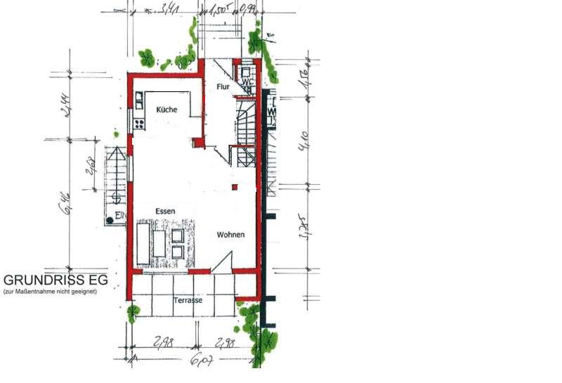
10690: Grundrisse Kapitänshaus - Vielen Dank für Eure Meinungen! 06.05.2013
- auf die schnelle... 07.05.2013
- Danke für Ihre Antwort! 07.05.2013
10689: Ideen für Neugestaltung 21.01.2013
Anhang:
- oooch... 28.01.2013
10688: Grundriss schmales Gäste WC mit Dusche 02.01.2013
Anhang:
- und 29.05.2013
10687: Grundriss - 2 Stockwerke (Bitte um Meinungen) 22.12.2012
- das gibt Ärger 26.12.2012
- Sorry für die harten Worte 28.12.2012
10686: Kritik und Vorschläge zum Grundriss 28.11.2012
- nur weil 30.11.2012
- gefällt mir nicht 03.12.2012
- Echt mal 19.12.2012
10685: Lässt sich diese Treppe gut gehen? 06.11.2012
- Spielraum zum verbreitern? 23.11.2012
10684: Optimaler Grundriss für Haus, Anzahl Zimmer etc? 02.09.2012
- Wenn das so einfach wär... 02.09.2012
10683: Hausplatzierung, aber wo? 28.07.2012
- Kein vernünftiger Rat möglich, 28.07.2012
- wozu gibt es Architekten? 09.08.2012
10681: Anordnung von Küche, Bad, WC und Technikraum 15.05.2012
10680: Direkter Zugang von ELW zum Heizungsraum erforderlich? 29.04.2012
10679: Gebäude falsch eingemessen 25.04.2012
- das fragen Sie am besten 27.04.2012
10678: Grundriss bitte um Meinungen 23.04.2012
- Nichts 23.04.2012
- Unproduktiv... 23.04.2012
- Hallo Julia B., eine Grundrissdiskussion ohne Angabe... 23.04.2012
- Zum besseren Verständnis 23.04.2012
- @ Sebastian Hrycyk der Garten ist Richtung... 23.04.2012
- Mal einen praktischen Tipp 26.04.2012
- Hallo Julia B. falls Sie ein Laie... 05.05.2012
- Selten so viel dummes Zeugs... 05.05.2012
- MS... 05.05.2012
- s.g. Herr/Frau Berg auch wenn ich... 05.05.2012
- Ich denke doch... 05.05.2012
- wenn das wirklich der Fall ist,... 05.05.2012
- Ja, der Grundriss ist auch schlecht... 05.05.2012
- naja wie pdf 1 und 2... 05.05.2012
- Na, Du bist ja ganz ein schlauer... 05.05.2012
- Erklärung 05.05.2012
- Hallo Herr Ralf Dühlmeyer, Ihre Drohungen erinnern... 06.05.2012
- In manch anderen Foren... 06.05.2012
- In manch anderem Forum... 06.05.2012
- @wiki: "seltsame Vorstellung von Diskussionskultur... " 06.05.2012
10677: Platzierung Carport/Garage 06.03.2012
10676: Integrierte Garage im Bungalow trotzdem Nebengebäude? 27.01.2012
10675: Grundriss Einfamilienhaus 19.01.2012
- Doch, gibt es... 20.01.2012
- bitte nicht gleich auf mich einprügeln... Gibt... 20.01.2012
- Wieso, prügelt doch keiner... 20.01.2012
- Fragen kostet nix 20.01.2012
- Und wenn Sie sich dann für 21.01.2012
- Einspruch! 26.01.2012
10674: Treppenloch berechnen 2x 1/4 gewendelte Treppe 22.10.2011
- Da kann man sich nur verwundert die Augen reiben! 22.10.2011
- Alternativ, 62-er Regel 22.10.2011
10673: Oberleitung auf Dach des Nebengebäudes welches abgerissen werden soll 09.10.2011
10672: Grundriss schwierig beim Einfamilienhaus, da Grundstück 15.08.2011
- Hier der Grundriss 15.08.2011
10671: Umbau einer alten Scheune: Grundrissdiskussion 14.08.2011
- Auch wenn Sie mit Architekt bauen 16.08.2011
- Ja, wurde es schon. Uns geht es... 17.08.2011
- Gebunden 17.08.2011
- Nein, das mag in Deutschland so zutreffen. In... 17.08.2011
10670: Umbau EG REH sinnvoll? 22.07.2011
- Kann denn die Küche 25.07.2011
10669: Parkplätze Hilfe 25.06.2011
Anhang:
- Ich sehe 2 Möglichkeiten für 7 Stellplätze 12.07.2011
10668: Mit der Bitte um Kritik im Detail... 21.05.2011
10667: Umbau 2 Familienhaus in EFH 10.04.2011
Anhang:
10666: Multiplikationsfehler Umbauter Raum 22.03.2011
- sofern... 22.03.2011
10665: Meinungen zu Grundriss erwünscht 06.02.2011
- Wirklich? 06.02.2011
- Was meinen Sie damit? 06.02.2011
- Auf diese Art 07.02.2011
- ist doch schon ganz nett... 01.03.2011
10664: Wohnflächenberechnung im Dachgeschoss mit Gauben 30.01.2011
- Ich nehme an es ist gemeint... 30.01.2011
- Länge Gaube Bauordnung Hamburg 30.01.2011
- Noch eine Frage zur Wohnflächenberechnung 30.01.2011
- Moin Mark, 30.01.2011
- Hatte unterstellt, dass die 2,20 m richtig... 30.01.2011
- Danke an euch Beide! 30.01.2011
- Falsch! Wenn das Dachgeschoss auf mehr... 30.01.2011
- wenn das Dachgeschoss auf mehr als... 10.03.2014
10663: Ist ein solcher Grundriss überhaupt möglich? 08.01.2011
10662: Haustrennwand bei Doppelhaus 20.11.2010
- das wird so kaum genehmigt 22.11.2010
- Was sagt denn die Baugenehmigung? Bei... 22.11.2010
10661: Doppelhaushälfte mit 2 Vollgeschossen - Verbesserungsvorschläge? 13.11.2010
10660: Flachbau - Wände entfernen - Tragfähigkeit (Beton Platte) 06.11.2010
- Statik 07.11.2010
10659: Grundriss Bungalow Hanglage 04.10.2010
Anhang:
- Planung 05.10.2010
10658: Nutzung OG Garage als Wohnraum 14.09.2010
- Klärt 14.09.2010
- S. Sch. 14.09.2010
- Nein, 14.09.2010
- S. Sch. 14.09.2010
- Nachbargrenzen und Grundstücksgrenzen 14.09.2010
10657: Garagen-Nebenraum zum Wäsche Trocknen? 13.09.2010
- Ventilator 13.09.2010
10656: Aufstellen von Baucontainern auf Privatgrundstück Rechtliche Seite 10.08.2010
- Außerhalb 10.08.2010
- Fürs Baurecht... 10.08.2010
10655: Kleines Haus Grundriss 06.08.2010
- Hier nochmal der Grundriss in hoher... 06.08.2010
- Habe ich das richtig verstanden... 06.08.2010
- Genau so sieht es aus. Das kleine... 06.08.2010
- Und Du bist sicher... 06.08.2010
- Wieso denn nicht? Oder ist eine... 06.08.2010
- Also... 06.08.2010
- Hallo. Von Baulasten usw. verstehe ich... 06.08.2010
10654: Keller größer als Haus (vom Grundriss) 21.07.2010
- Werter Forumsteilnehmer, . keine der... 01.10.2010
- @ Reinartz 01.10.2010
10653: Berechnung Geschossflächenzahl 21.06.2010
- Warum 21.06.2010
- ch habe ein Grundstück mit diesen... 21.06.2010
- Das geht nicht... 21.06.2010
- Planer sind wir bisher selber (Arcon)... 21.06.2010
- Da sehen Sie... 21.06.2010
10652: schwebender Erker 18.06.2010
- Sowas nennt sich... 18.06.2010
- Keine Probleme mit dem Erker und der Wärmedämmung 01.10.2010
10651: Bedeutung EUV 21.04.2010
- Wie wäre es... 22.04.2010
10650: Muss ich Abstandsflächen laut Art. 6 Bayrische Bauordnung in meinem Fall einhalten? (Bayern) 16.04.2010
- neue Situation 20.04.2010
10649: Unterdschiedliche Wohnfläche bei übereinanderliegenden Wohnungen? n 25.03.2010
- möglich, 26.03.2010
- Altbau? 26.03.2010
- NA EIN Neubau ist es JEDENFALLS NICHT! 26.03.2010
- Möglich ist zum Beispiel, 26.03.2010
- Hintergrund 26.03.2010
- II. BV für alte Verträge 26.03.2010
- Anrechnung 26.03.2010
- klar hat das Nachteile 26.03.2010
- Schimmel 26.03.2010
10648: Gibt es einen Service zum Kauf von Hausplänen? 14.03.2010
- Eigentlich gibt es es sowas hier auch... 14.03.2010
10647: Grundsätzliche Fragen zum Bad-Grundriss 05.03.2010
10646: Größe für Heizungsraum mit Lüftungsanlage 25.02.2010
10645: Hilfe gesucht bei neuem Grundriss 1 Zimmer, 39 m², Schlauchbad-Problem 09.02.2010
10644: Eigenmächtige Änderung des Bauträgers 29.01.2010
- Steht auch nicht so was ähnliches wie... 29.01.2010
- So, der Rohrkasten soll nun 15 cm x... 30.01.2010
- was ist denn unter dem Schlafzimmer? ggf kann... 30.01.2010
- Unter unserem Schlafzimmer ist das Schlafzimmer der ersten... 30.01.2010
- Ist diese Entlüftung unbedingt notwendig? 30.01.2010
- So nicht... 30.01.2010
- Nicht so forsch... 30.01.2010
- Ja, nur... 31.01.2010
- Jens, nicht behaupten... 31.01.2010
- besser wäre es 31.01.2010
- @ Berg und Berg 31.01.2010
- Jens, wetten... 01.02.2010
- Keine Wette! 02.02.2010
- dann lass uns... 02.02.2010
10643: Grundstücksgröße, Bebauungsplan, Hausgröße - was geht? 27.01.2010
- Nö, ist nicht... 27.01.2010
- Nachtrag... 27.01.2010
- Bebauungsplan 27.01.2010
- Nö,... 27.01.2010
10642: "Luftleerer Raum" im Plan 26.01.2010
- Astronautentraining 26.01.2010
- NASA Bestellung storniert :) 26.01.2010
- Dürfte kein Problem sein 27.01.2010
- Kalkulation 27.01.2010
10641: Was ist mit einem Gebäudeverhältnis gemeint? 03.01.2010
- ganz spontan... 03.01.2010
- Gebäudeverhältnis und Grundstücksbreite 03.01.2010
10640: Badezimmer: WC vom Rest trennen... hat jemand Ideen? 03.01.2010
- Badezimmer und der Rest? 03.01.2010
- Als Grundriss 04.01.2010
- Oder separates WC anderswo 04.01.2010
































