BAU-Forum: Sanitär, Bad, Dusche, WC
Neueste Forums-Bilder
Forums-Beiträge
⇐ Neuere Forums- und Blog-Beiträge anzeigen
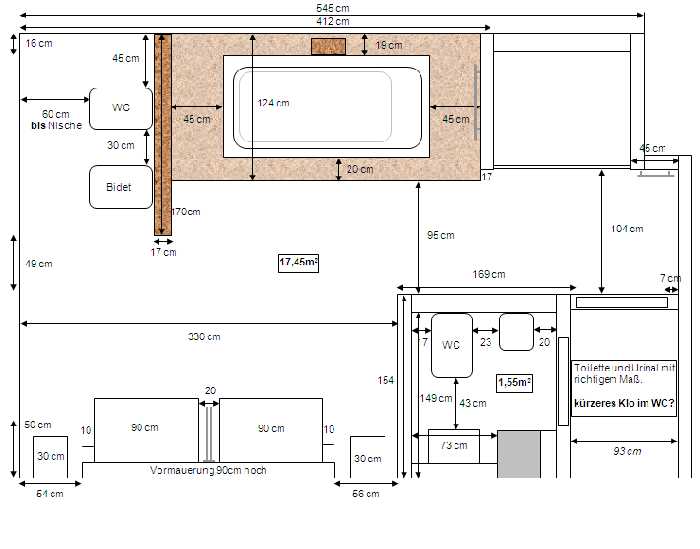
12013: Bad - Neuplanung 23.06.2011
12012: Duscharmatur - Schimmel? 08.06.2011
12011: Bad und Küche an einem Abwasserrohr 50 mm 06.06.2011
12010: Fliesenrisse Hänge WC 27.05.2011
- kann...! 30.05.2011
- da es sich um eine Mietwohnung... 30.05.2011
12009: Ständervorwand im Bad aus Leimbinder 21.05.2011
12008: Estrich für begehbare Dusche mit Gefälle selbst gießen 17.05.2011
- Nicht ganz einfach... 17.05.2011
- Zuerst schon mal danke.. 17.05.2011
12007: Einbau eines Unterputz-Spülkasten 12.05.2011
- der Kauf ist das geringeste Problem,... 13.05.2011
12006: Kanalrohr-Lecksuche durch Berauchung 06.05.2011
- Wenn man schon weiß... 10.05.2011
- Danke für Ihren Beitrag, Herr Paulsen... 11.05.2011
12005: Holzboden im Bad 11.04.2011
- Gegen Massivholz im Bad spricht nichts... 12.04.2011
- Tja - da gibt es Leute, die winken mit der DIN 18195 14.04.2011
12004: Muss ein Fallrohr immer 100 % Gefälle haben? 09.04.2011
12003: Gibt es eine separate Zugbetätigung für Ablaufventile (nicht in der Armatur integriert)? 18.03.2011
12002: Regendusche - Wasser läuft nach 15.03.2011
12001: Caparol StuccoDecor DI LUCE im Bad? 07.03.2011
12000: Mindestabstand von WC zum Waschbecken 04.03.2011
- na ja, im wesentlichen... 04.03.2011
- Planungshilfe 04.03.2011
11999: Einbau Duschwanne 04.03.2011
- moin namenskollege 05.03.2011
- Hey Kollege, Ich habe das geprüft... 12.03.2011
- meinst du Frankfurt a. Main? 16.03.2011
11998: Strangentlüftung ohne Toilette 27.02.2011
- das ist... 28.02.2011
- Esgäbe noch die Möglichkeit einer 28.02.2011
- Strangbelüftung 28.02.2011
11997: Toilette senkt sich - falscher Toilettenkasten in Trockenbau eingebaut 20.02.2011
- Austauschen 20.02.2011
- zumindest geht es nicht ohne Bauteilöffnung.. 20.02.2011
- alternativ 22.02.2011
11996: Wanne auf Beton, Ummauerung auf Estrich 19.02.2011
- und nach 20.02.2011
11995: Problem beim Austausch eines versenkbaren Duschschlauches 14.02.2011
- weitere Infos 27.02.2011
- Problem gelöst 12.03.2011
11994: Wurde die Installation in meiner Vorwand richtig ausgeführt? 04.02.2011
- die Angst ist kaum begründet. Die Hahnverlängerungen haben einen Innensechskant. Man kann sie also auch ohne Wandabriss wieder einschrauben. 04.02.2011
- Danke für die Meinung, die Erklärung... 06.02.2011
11993: Nachträglicher Schallschutz mit Aufsatzscheiben? 03.02.2011
- @Vielen Dank 03.02.2011
- was missfällt denn so... 03.02.2011
11992: Duschwanne hat Spiel und knischt 28.01.2011
11991: Reihenfolge Fliesenarbeiten Bad 19.01.2011
- so, jetzt bin ich gespannt? 20.01.2011
11990: Schimmelpilze in der Kölner Lüftung? 18.01.2011
11989: Haltbarkeit Flexkleber 18.01.2011
- kommt drauf an, 19.01.2011
11988: Was darf begehbare (geflieste) Dusche kosten? 16.01.2011
- Verhandlungssache 18.01.2011
11987: WC hängt zu hoch! 09.01.2011
- Kommen noch die Fliesen...? 17.01.2011
11986: Badezimmer in Wohnraum umwandeln 06.01.2011
- keine Sackgassen 07.01.2011
11985: Dampfsperre bei Dampfdusche 31.12.2010
- hmm 31.12.2010
- anstatt kerdi 01.01.2011
- Eine echte Dampfsperre wollte ich auf... 01.01.2011
- Der Tipp mit den Wedi Platten... 01.01.2011
11984: Unterputzspülkasten Ablaufrohr völlig verkalkt 22.12.2010
- Um das zu wissen... 22.12.2010
- genau das habe ich schon gemacht;... 22.12.2010
- schon mal mit rauskratzen versucht? Das... 22.12.2010
- ich bin sogar mit der Bohrmaschine... 22.12.2010
- Wenn der Kalk... 22.12.2010
- Unterputzspülkasten?! 22.12.2010
- Geberit hat mich eben zurückgerufen : 23.12.2010
- der Geberitberater hat dann noch gemeint, 23.12.2010
11983: Produktsuche Wasserhahn 16.12.2010
11982: Trockenbau freistehende Wand mit hängendem WC und Bidet 10.12.2010
- Vorwandelement 10.12.2010
- Es gibt Spülkästen deren Oberkante auf... 13.12.2010
11981: duschpodest komplett mit Estrich Beton ausgießen, oder aufmauern? 07.12.2010
- Duschpodest 08.12.2010
- danke für die Antwort 08.12.2010
- das wird nichts...! 10.12.2010
11980: Kanalgeruch im Bad 02.12.2010
- Alle Dichtungen... 02.12.2010
11979: HT-Rohr DN 100 vertikal über 19 m möglich? 25.11.2010
- HT-Rohr DN 100 horrizontal über 19 m möglich? 25.11.2010
- In einem Keller... 25.11.2010
- Du wiederholst dich, Ralf 25.11.2010
11978: Abwasserrohre in DN90 oder DN100 25.11.2010
11977: Überdachentlüftung WC - gibt es Alternativen? 08.11.2010
- ja gibt es. 09.11.2010
- habe ebenfalls mit dem Baumarkteil (von M... y) keine guten Erfahrungen gemacht... ging eine Zeitlang gut, dann nicht mehr. 09.11.2010
11976: Abdichtungsband - Dusche - Nach Sanierung kaputt 29.10.2010
- weil leider 06.11.2010
11975: Machen Durchlaufbegrenzer bzw. sog. Wassersparprodukte Sinn? 25.10.2010
- Achtung... 25.10.2010
11974: Ausgeflieste Whirlpool-Badewanne selber bauen? 20.10.2010
- Mal zu WU-Beton 21.10.2010
- Whirlpool selber bauen 27.10.2010
11973: Spezielle Freuchtraumspiegel? Spiegelrand korrodiert 13.10.2010
11972: Badbodenfliesen sandstrahlen? 09.10.2010
- Streit vorprogrammiert 12.10.2010
11971: Breite des Eingangs zur Dusche 06.10.2010
11970: Dusche ohne Tritt-Kante? 27.09.2010
- die Frage ist 28.09.2010
- Habe Termin vereinbart 29.09.2010
- was bringt 01.10.2010
11969: Abwasser Schallschutzrohr 20.09.2010
- SML 20.09.2010
- hauptaugenmerk bitte auf... 20.09.2010
- schon mal Danke für die Antworten... 21.09.2010
- T9 21.09.2010
11968: Duschbereich Abdichtung mit Silikon? 19.09.2010
- bis zu 40 % 22.09.2010
- Danke 22.09.2010
11967: WC Montage mit Fermit? 02.09.2010
- ein Tropfen (oder mehrere) Spülmittel tut es auch... 02.09.2010
- ich dachte spülmittel macht das ganze... 03.09.2010
- Spülmittel verringert die Oberflächenspannung. Dass es das Wasser fließfähiger machen soll, davon habe ich noch nichts gehört... 03.09.2010























