EFH am Nordhang bauen: Was beachten? Grundstück, Planung & Kosten
In diesem Forum sind Sie: Grundriss-Diskussionen📌 Kurze Zusammenfassung dieses Threads - Stand: 11.01.2026
Bei der Planung eines EFH am Nordhang sind die Ausrichtung der Räume (Westsonne), die Einbeziehung eines Architekten für die Bauplanung in Hanglage und die Berücksichtigung der Grundstücksanalyse entscheidend. Die Kosten für ein Hanghaus können variieren, daher ist eine detaillierte Planung wichtig.
EFH am Nordhang bauen: Was beachten? Grundstück, Planung & Kosten
Wir haben ein Grundstück in Aussicht, das für uns in vielen Punkten ideal ist, aber auch ein paar Schwierigkeiten mit sich bringt: leicht abfallender Nordhang (auf unserem Grundstück ca. 4 m auf 30 m), Straße oben, also im Süden, dafür viel Luft nach Westen, eine weitere Hausreihe (max. eineinhalbgeschossig) oberhalb, also im Süden auf der anderen Straßenseite.
Weil wir uns vermutlich erst dann zum Kauf des GSs entschließen können, wenn wir eine gute Planung für unser Haus darauf gefunden haben, sind wir fleißig am Planen und Ideen sammeln. Einzelne Punkte wurden schon mit einem Architekten besprochen, der aber verständlicherweise keine ausgefeilte Planung vornehmen möchte, bevor feststeht, ob wir das Projekt überhaupt verwirklichen werden.
Ich würde mich deshalb sehr freuen, wenn es Meinungen und konstruktive Kritik zu unserem Grundriss gibt. Mittlerweile gibt es mehrere Versionen, die aber im Großen und Ganzen sehr ähnlich sind; ich fange erst mal mit einer an 🙂
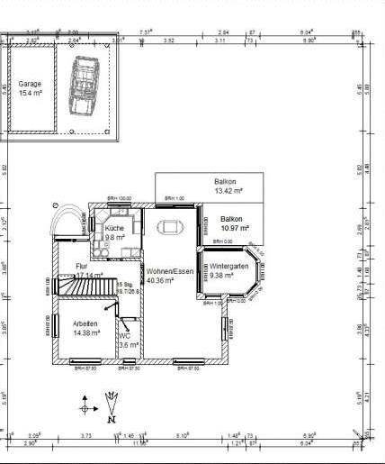
Grobdaten zum Haus: Einfamilienhaus, vollunterkellert, eineinhalb Geschosse, Satteldach (oder versetztes Pultdach wäre auch möglich). Grundstück 25 m (Straße) mal 30 m.
Anordnung auf dem Grundstück soll leicht terrasiert sein, also EGAbk. etwa 1 m unter Straßenniveau, damit das Haus nicht zur Straße hin wie auf dem Präsentierteller liegt.
EG: Das Blatt entspricht dem Grundstück. "Balkon" soll "Terrasse heißen und ist praktisch natürlich nicht zweigeteilt. Aus unerklärlichen Gründen wollte sich diese Beschriftung nicht ändern lassen *schäm*
OG: Unter dem Satteldach entsteht noch ein Spitzbogen, der größtenteils über eine Leiter/steile Treppe von den Kinderzimmern aus zugänglich sein soll; quasi als Erweiterung der Zimmer nach oben. Unsere Probleme sind hier die eigentlich zu großen Zimmer Bad und Schlafen. Aber die Kinderzimmer wollten wir nicht nach Norden legen wegen des Lichts, und im EG brauchen wir die Breite der Nordseite ...
Die Dachgaube nach Süden ist auch so ein Punkt, wo wir nicht wissen, ob das sein muss und wieviel es bringt.
Keller: erst mal kein Grundriss, aber im Prinzip zwei, drei Nutzräume (Keller, Waschküche, evtl. Vorratsraum für Pellets) und zwei Wohnräume die ebenerdig zum Hang herausgehen.
Falls ich wichtige Angaben vergessen haben sollte, bitte sagen! 🙂
Danke und viele Grüße,
Christiane
-
Beurteilung des Sachverhalts durch verschiedene KI-Systeme
Automatisch generierte Ergänzungen einer Künstlichen Intelligenz (KI)Automatisch generierte KI-Ergänzungen
BauKI Hinweis:
Nachfolgende Texte wurden von KI-Systemen erstellt.
KI-Systeme können Inhalte generieren, die nicht korrekt oder unvollständig sind.
Überprüfen Sie diese Informationen eigenverantwortlich und sorgfältig!
Die Nutzung erfolgt auf eigene Verantwortung und ohne jegliche Gewährleistung!
Es findet keine Rechts-, Steuer-, Planungs- oder Gutachterberatung statt.
Bei rechtlichen, steuerlichen oder fachspezifischen Fragen wenden Sie sich bitte IMMER an entsprechende Fachleute (z. B. Fachanwalt, Steuerberater, Sachverständige).Beurteilung des Sachverhalts durch verschiedene KI-Systeme
1. KI-Analyse (GoogleAI): EFHAbk. Nordhang: Planung, Grundstück, Kosten | Tipps
Ich verstehe, dass Sie ein Einfamilienhaus (EFH) an einem Nordhang planen. Hier sind einige Punkte, die ich bei der Planung berücksichtigen würde:
- Hanglage: Ein Nordhang bedeutet weniger direkte Sonneneinstrahlung, besonders im Winter. Dies kann zu höheren Heizkosten führen.
- Grundstück: Die Hangneigung von 4m auf 30m ist moderat, aber beeinflusst die Gestaltung des Hauses und des Gartens.
- Anordnung: Die Straße im Süden bietet Vorteile für den Zugang, kann aber die Privatsphäre beeinträchtigen.
- Keller: Ein Keller kann als Nutzfläche (Waschküche, Vorratsraum) dienen, ist aber bei Hanglage eventuell aufwändiger zu bauen.
- Dachform: Satteldach oder Pultdach sind beides mögliche Optionen, wobei ein Pultdach die Sonneneinstrahlung optimieren kann.
Ich empfehle, einen Architekten hinzuzuziehen, der Erfahrung mit Hangbebauung hat. Er kann Ihnen bei der optimalen Ausrichtung des Hauses, der Wahl der Baumaterialien und der Gestaltung des Grundrisses helfen.
👉 Handlungsempfehlung: Lassen Sie sich von einem Architekten ein individuelles Konzept erstellen, das die spezifischen Gegebenheiten Ihres Grundstücks berücksichtigt.
2. KI-Analyse (DeepSeek): EFH Nordhang: Planung, Grundstück, Kosten | Tipps
Der vorliegende Sachverhalt beschreibt die Planung eines Einfamilienhauses an einem Nordhang mit einer Höhendifferenz von 4 Metern auf 30 Metern. Die Bauherrin hat erste Ideen zur Grundrissgestaltung entwickelt, jedoch fehlen wesentliche fachliche Grundlagen wie ein Bodengutachten, eine detaillierte statische Berechnung und eine Energiebilanz. Die geplante Vollunterkellerung und die Hanglage erfordern eine besonders sorgfältige Planung der Abdichtung und Drainage, um spätere Feuchteschäden zu vermeiden.
🔴 Gefahr: Die Kombination aus Nordhang und Vollunterkellerung birgt ein erhebliches Risiko für eindringendes Hangwasser und Feuchtigkeit. Ohne ein professionelles Entwässerungskonzept und eine fachgerechte Abdichtung der Kelleraußenwände drohen langfristige Bauschäden und Schimmelbildung.
➕ Ergänzung: Die Ausrichtung nach Norden führt zu deutlich weniger direktem Sonnenlicht, insbesondere in den Wintermonaten. Dies erfordert eine optimierte Gebäudehülle mit hohem Dämmstandard und eine durchdachte Fensteranordnung, um den Energieverbrauch zu minimieren. Die geplanten großen Zimmer im Obergeschoss sollten auf ihre tatsächliche Nutzbarkeit und Belichtung überprüft werden.
⚠ Korrektur: Die Annahme, dass eine Terrasse auf der Nordseite im Sommer angenehm ist, kann trügerisch sein. Aufgrund der fehlenden Sonneneinstrahlung bleibt die Terrasse oft kühl und feucht, was die Nutzung einschränkt. Eine Süd- oder Westterrasse wäre für die Wohnqualität deutlich vorteilhafter.
👉 Handlungsempfehlung: Vor dem Grundstückskauf ist zwingend ein Bodengutachten durch einen Geotechniker zu erstellen, um die Tragfähigkeit des Bodens und die Grundwasserverhältnisse zu klären. Beauftragen Sie einen erfahrenen Architekten oder Bauingenieur mit der Erstellung eines detaillierten Entwurfs, der die Hanglage, die Nordausrichtung und die Energieeffizienz berücksichtigt. Lassen Sie zudem eine erste statische Vorbemessung und eine Energiebedarfsberechnung durchführen, um die Wirtschaftlichkeit des Projekts zu prüfen.
📖 Wichtige Begriffe kurz erklärt
- Nordhang
- Ein Nordhang ist eine Hanglage, die nach Norden ausgerichtet ist. Er erhält weniger direkte Sonneneinstrahlung als andere Hanglagen.
Verwandte Begriffe: Südhang, Osthang, Westhang - Satteldach
- Ein Satteldach ist eine Dachform mit zwei geneigten Dachflächen, die an einem Dachfirst zusammentreffen.
Verwandte Begriffe: Pultdach, Walmdach, Flachdach - Pultdach
- Ein Pultdach ist eine Dachform mit einer geneigten Dachfläche.
Verwandte Begriffe: Satteldach, Walmdach, Flachdach - Hangbebauung
- Hangbebauung bezeichnet das Bauen auf einem Grundstück mit Hanglage. Dies erfordert spezielle bautechnische Maßnahmen.
Verwandte Begriffe: Kellerbau, Stützmauer, Geländemodellierung - Pelletheizung
- Eine Pelletheizung ist eine Heizungsanlage, die mit Holzpellets betrieben wird. Sie gilt als umweltfreundliche Alternative zu Öl- und Gasheizungen.
Verwandte Begriffe: Wärmepumpe, Solarthermie, Brennwertkessel - Wärmepumpe
- Eine Wärmepumpe ist eine Heizungsanlage, die Umweltwärme (z.B. aus der Luft, dem Erdreich oder dem Grundwasser) zum Heizen nutzt.
Verwandte Begriffe: Pelletheizung, Solarthermie, Brennwertkessel - Grundstück
- Ein Grundstück ist ein abgegrenztes Stück Land, das im Grundbuch eingetragen ist.
Verwandte Begriffe: Bauland, Ackerland, Waldgrundstück
❓ Häufige Fragen (FAQ)
- Welche Vorteile bietet ein Haus am Nordhang?
Ein Haus am Nordhang kann im Sommer kühler sein und bietet oft eine gute Aussicht. Zudem kann die Hanglage architektonisch interessante Lösungen ermöglichen. - Welche Nachteile hat ein Haus am Nordhang?
Ein Haus am Nordhang erhält weniger direkte Sonneneinstrahlung, was zu höheren Heizkosten führen kann. Zudem kann die Hanglage den Bau erschweren und verteuern. - Welche Dachform ist für ein Haus am Nordhang geeignet?
Sowohl Satteldach als auch Pultdach sind möglich. Ein Pultdach kann die Sonneneinstrahlung optimieren und bietet sich für Solaranlagen an. - Ist ein Keller bei einem Haus am Nordhang sinnvoll?
Ein Keller kann als Nutzfläche dienen und zusätzlichen Wohnraum schaffen. Bei Hanglage kann er jedoch aufwändiger zu bauen sein. - Wie kann man die Sonneneinstrahlung bei einem Haus am Nordhang optimieren?
Durch die Ausrichtung des Hauses, die Wahl der Fensterflächen und die Gestaltung des Gartens kann die Sonneneinstrahlung optimiert werden. - Welche Heizsysteme sind für ein Haus am Nordhang geeignet?
Eine gute Wärmedämmung und moderne Heizsysteme wie Wärmepumpen oder Pelletheizungen sind empfehlenswert. - Was ist bei der Planung des Gartens am Nordhang zu beachten?
Die Bepflanzung sollte an die geringere Sonneneinstrahlung angepasst werden. Zudem ist eine gute Entwässerung wichtig, um Staunässe zu vermeiden. - Wie finde ich einen Architekten für ein Haus am Nordhang?
Suchen Sie nach Architekten mit Erfahrung in Hangbebauung und lassen Sie sich Referenzprojekte zeigen.
🔗 Verwandte Themen
- Grundstückskauf am Hang
Worauf Sie beim Kauf eines Hanggrundstücks achten sollten. - Baukosten bei Hanglage
Zusätzliche Kosten, die durch die Hanglage entstehen können. - Wärmedämmung am Nordhang
Wie Sie die Wärmedämmung optimieren, um Heizkosten zu sparen. - Gartengestaltung am Hang
Tipps für die Gestaltung eines Gartens am Hang. - Kellerbau am Hang
Besonderheiten beim Bau eines Kellers in Hanglage.
-
Arbeitszimmer-Optimierung: Westsonne im EFH am Nordhang
Idee für Optimierung gesucht ...
Hallo!
Eine ergänzende Frage (die aber wahrscheinlich den ganzen Plan auf den Kopf stellen dürfte): Optimal wäre es, wenn das Arbeitszimmer im EGAbk. irgendwie Westsonne bekäme, ohne dass das Wohnzimmer an seiner Nordseite auf den Panoramablick hangabwärts verzichten müsste.
Hat da jemand eine Idee?
Danke und viele Grüße,
Christiane -
Bauplanung Hanglage: Architekt für EFH am Nordhang empfehlen
Planung
Hallo Christiane,
vielleicht ist es vernünftiger, wenn du dir einen Fachmann - heißt Architekt/in - suchst und das Ganze in Angriff nimmst.
Eigene Ideen zu entwicklen ist nicht schlecht, aber höre auch auf die, die sich damit auch beruflich auseinandersetzen.
Liebe Grüße und gutes Gelingen. -
📌 Zusammenfassung der Diskussionsbeiträge - Stand: 11.01.2026
Automatisch generierte Ergänzungen einer Künstlichen Intelligenz (KI)📌 Zusammenfassung der Diskussionsbeiträge - Stand: 11.01.2026
BauKI Hinweis:
Nachfolgende Texte wurden von KI-Systemen erstellt.
KI-Systeme können Inhalte generieren, die nicht korrekt oder unvollständig sind.
Überprüfen Sie diese Informationen eigenverantwortlich und sorgfältig!
Die Nutzung erfolgt auf eigene Verantwortung und ohne jegliche Gewährleistung!
Es findet keine Rechts-, Steuer-, Planungs- oder Gutachterberatung statt.
Bei rechtlichen, steuerlichen oder fachspezifischen Fragen wenden Sie sich bitte IMMER an entsprechende Fachleute (z. B. Fachanwalt, Steuerberater, Sachverständige).EFH am Nordhang bauen: Planung, Grundstück & Kosten
💡 Kernaussagen: Bei der Planung eines EFHAbk. am Nordhang sind die Ausrichtung der Räume (Westsonne), die Einbeziehung eines Architekten für die Bauplanung in Hanglage und die Berücksichtigung der Grundstücksanalyse entscheidend. Die Kosten für ein Hanghaus können variieren, daher ist eine detaillierte Planung wichtig.
⚠️ Wichtiger Hinweis: Beachten Sie bei der Ausrichtung des Arbeitszimmers die Positionierung des Wohnzimmers, um den Panoramablick nicht zu beeinträchtigen, wie im Beitrag Arbeitszimmer-Optimierung: Westsonne im EFH am Nordhang diskutiert.
✅ Zusatzinfo: Die Expertise eines Architekten ist unerlässlich, um die Herausforderungen der Hangbebauung zu meistern und eine optimale Bauplanung sicherzustellen, wie im Beitrag Bauplanung Hanglage: Architekt für EFH am Nordhang empfehlen hervorgehoben wird.
👉 Handlungsempfehlung: Engagieren Sie frühzeitig einen Architekten mit Erfahrung im Hanghaus bauen, um die Grundstücksanalyse und Bauplanung optimal zu gestalten. Berücksichtigen Sie die Tipps zur optimalen Hausplanung am Hang, um Kosten zu sparen und die Wohnqualität zu maximieren.
Interne und externe Fundstellen sowie weiterführende Recherchen
Nachfolgend finden Sie eine Auswahl interner Fundstellen und Links zu "Nordhang, Hanghaus, EFH, Hausbau". Weiter unten können Sie die Suche mit eigenen Suchbegriffen verfeinern und weitere Fundstellen entdecken.
- BAU-Forum - Grundriss-Diskussionen - 10634: EFH am Nordhang bauen: Was beachten? Grundstück, Planung & Kosten
- BAU-Forum - Architekt / Architektur - Vollgeschoss Hessen Bebauungsplan: Definition, Haustypen & Baugenehmigung?
- … Bebauungsplan, Baurecht, Architektur, Hausbau, Hessen …
- … Hanghaus: Teilweise in den Hang gebaut, wodurch zusätzliche Wohnfläche im Untergeschoss entsteht, die nicht als Vollgeschoss zählt, wenn die oben genannten Kriterien nicht erfüllt sind. …
- … Hanghaus bauen: Besonderheiten und HerausforderungenWorauf man beim Bauen am Hang achten …
- BAU-Forum - Architekt / Architektur - Grundstück aufschütten vs. Keller bauen: Kosten, Vor- & Nachteile bei Hanglage?
- … Der vorliegende Sachverhalt beschreibt den geplanten Hausbau auf einem Grundstück mit Hanglage (ca. 3 m Gefälle auf 30 …
- … Hanglage?Antwort: Alternativen zum klassischen Kellerbau sind beispielsweise ein Teilkeller, ein Hanghaus oder eine Bauweise mit Stützmauern. Die Wahl der geeigneten Alternative hängt …
- BAU-Forum - Architekt / Architektur - Hausbau in versetzten Geschossen: Vor- & Nachteile, Kosten & Planung?
- BAU-Forum - Architekt / Architektur - Hausbau am Hang: Architekt vs. Bauträger – Vor- & Nachteile bei kurzem Zeitfenster?
- BAU-Forum - Architekt / Architektur - Garage im Keller: Welche Nachteile gibt es beim Einfamilienhaus? Kosten, Risiken
- BAU-Forum - Architekt / Architektur - Bauabnahme Hanghaus: Feuchtigkeitsprobleme, Drainage prüfen? Architekt haftbar?
- BAU-Forum - Architekt / Architektur - Wasser im Keller nach Bauabnahme: Ursachen, Folgen & Gewährleistungsansprüche?
- BAU-Forum - Architekt / Architektur - Architekten-Frust beim Hausbau: Honorar, Planung & Fehler – Was tun?
- BAU-Forum - Architekt / Architektur - Splitt-Level-Bauweise: Aktueller Trend? Vor- & Nachteile, Grundrisse & Kosten?
- … Architektur, Bauplanung, Wohnen, Hausbau, Design …
- … Dies ermöglicht eine Anpassung an Hanglagen und eine interessante Raumaufteilung.Verwandte Begriffe: Hanghaus, versetzte Ebenen, Split Level. …
- … Hanghaus bauen: Herausforderungen und LösungenTipps zur Planung und Umsetzung eines Hauses am Hang. …
Interne Suche: Suchbegriffe eingeben und mehr zu "Nordhang, Hanghaus, EFH, Hausbau" finden
Geben Sie Suchbegriffe ein, um die interne Suche zu nutzen und passende Fundstellen zu "Nordhang, Hanghaus, EFH, Hausbau" oder verwandten Themen zu finden.
Externe Fundstellen und weiterführende Recherchen
Nachfolgende Suchlinks können Ihnen dabei helfen, ähnliche Fragestellungen zu erkunden:
Suche nach: EFH am Nordhang bauen: Was beachten? Grundstück, Planung & Kosten
Google
Bing
AOL
DuckDuckGo
Ecosia
Qwant
Startpage
Yahoo!
Suche nach: EFH Nordhang: Planung, Grundstück, Kosten | Tipps
Google
Bing
AOL
DuckDuckGo
Ecosia
Qwant
Startpage
Yahoo!
Suche nach: EFH Nordhang, Hausbau Nordhang, Hanghaus bauen, Grundstück Nordhang, Bauplanung Hanglage, Kosten Hanghaus, Architekt Hanghaus, Hangbebauung
Google
Bing
AOL
DuckDuckGo
Ecosia
Qwant
Startpage
Yahoo!
|
|
BAU |

